企业信息 Information

公司名称:上海顾智信息技术有限公司

法人代表:顾寒阳

注册地址:上海市宝山区牡丹江路1325号3层-333B室

所属行业:专业技术服务业

更多行业:其他未列明专业技术服务业,工业与专业设计及其他专业技术服务,专业技术服务业,科学研究和技术服务业

弱电工程精品施工工艺图片赏析——安装篇

产品列表

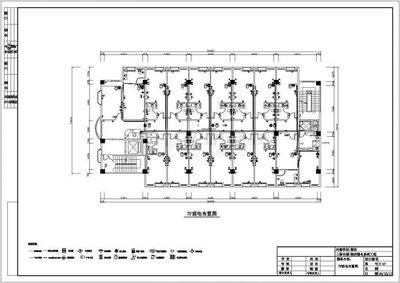
小区智能化弱电工程施工组织设计方案

更新时间:2026-04-16 11:10:11

某公建项目弱电工程升级改造设计方案

更新时间:2026-04-16 10:46:18

公司简介 COMPANY

经营范围:计算机软硬件销售及技术开发、技术转让、技术服务;计算机维修及维护服务;弱电工程设计、安装;综合网络布线;计算机系统集成;网页设计与安装;电脑平面设计;美术设计、制作;电脑图文设计、制作;网络技术开发、技术转让、技术咨询、技术服务;电子科技领域内的技术开发、技术转让及技术咨询服务;安防技术工程;信息化平台销售及提供相关策划与技术服务;信息化社区建设、设计、策划。 【依法须经批准的项目,经相关部门批准后方可开展经营活动】

公司简介: 上海顾智信息技术有限公司成立于2015年11月16日,注册地位于上海市宝山区牡丹江路1325号3层-333B室,法定代表人为顾寒阳。经营范围包括计算机软硬件销售及技术开发、技术转让、技术服务;计算机维修及维护服务;弱电工程设计、安装;综合网络布线;计算机系统集成;网页设计与安装;电脑平面设计;美术设计、制作;电脑图文设计、制作;网络技术开发、技术转让、技术咨询、技术服务;电子科技领域内的技术开发、技术转让及技术咨询服务;安防技术工程;信息化平台销售及提供相关策划与技术服务;信息化社区建设、设计、策划。

【依法须经批准的项目,经相关部门批准后方可开展经营活动】

联系我们 Contact

电话:021-272**

邮箱:zari**[email protected]

地址:上海市宝山区牡丹江路1325号3层-333B室

友情链接: 模型设计 编织布 互联网数据服务 汽车拖车 计算机系统集成 网络技术服务 品牌管理 日用杂品销售 日本商标注册 信息技术领域‌ 咨询服务 项目策划与公关服务 金属制品 市场营销策划 茶叶 计算机网络工程 互联网销售 教学服务 建筑工程 信息咨询服务 网站设计与开发 工矿配件 箱包 书法 技术服务 互联网数据服务 汽车配件研发 牙科美容 购物 建设工程施工 人工智能应用软件开发 信息技术研发 联网信息服互务 互联网数据服务 互联网科技 计算机网络技术研发及咨询 原画设计 装卸服务 文艺创作与表演 计算机 网络技术服务 技术开发 网络与信息安全软件开发 经济信息咨询 国内贸易代理 信息系统集成服务 美发饰品销售 互联网安全服务 建筑材料 橱柜 服装零售 环保科技 互动教学终端 数字文化创意内容应用服务 计算机软硬件及辅助设备 多媒体设计 襄阳汽车职业技术学院 气动执行器 服饰 实验小学 环保科技 钢板 北京庆鸿双茂科技公司 四川秩苏科技有限公司 广州合联物流信息科技有限公司 悟氢科技(武汉)有限公司 越信智能科技(深圳)有限公司 邵阳市大祥区柳记粉面馆 北京聚飞科技 永康市楚天顺科技有限公司 上海虞其网络科技有限公司 抚州市玖壹贰零电子商务有限公司 四川云启天翊网络科技有限公司 北京洁登科技有限公司 中科富创(北京)科技有限公司 北京星茂铭安科技有限公司 大连深海科技有限公司 东莞市阿狸网络信息科技有限公司 北京元米遥通科技有限公司 四川众创益网络科技有限公司 河南骏林信息技术有限公司 阳泉聪尚网络有限公司 北京威鸿龙达科技有限公司 昆山鲁新特模具材料有限公司 广州市伟正木制品有限公司 飞行俱乐部 郑州九祖商贸有限公司 深圳宽博科技有限公司 河南艺境空间文化传播有限公司 北京宇灿辉兴科技有限公司 21世纪不动产武汉区域 黑龙江甜狗信息技术有限公司 南宁降玺网络科技有限公司 贵州独饮天下商贸有限公司 青岛誉名科技有限公司 中央储备粮唐山直属库有限公司 上海衡宏帆科技有限公司 深圳粒子云科技有限公司 青岛现代漆业有限公司 贵州奇威奇科技有限公司 北京云掣科技有限公司 天气预报 北京卓语翻译有限公司
Top